学术活动

◇ 当前位置: 网站首页 > 学科建设 > 学术活动 > 正文

我院田长青老师团队作品入选 第十四届圣保罗国际建筑双年展中国建筑展

发布日期:2025年09月30日 来源: 作者:




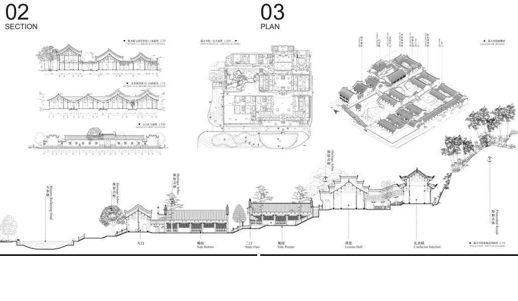
近日,我院田长青老师团队主持设计的传统建筑项目《Confucian Ideals and Spatial Order Amidst Mountains and Waters: The Rebuilding of Zhenyan Academy》(《介于山水之间的士人理想与空间秩序:箴言书院重建项目》)成功入选第十四届巴西圣保罗国际建筑双年展中国建筑展,并于2025918日至1019日在巴西著名建筑师奥斯卡·尼迈耶设计的圣保罗伊比拉普埃拉公园OCA展馆向全球观众展示,该项目是本次湖南地区唯一入选项目。本次圣保罗双年展以“极限:为过热星球打造的建筑”为主题,中国展区学术主题定为“共享·共生·共栖”,旨在全球气候危机背景下,探寻建筑如何回应生态挑战并传承人文价值。该项目深度契合了这一主题:项目基于“箴言书院志”的历史记载,“师其意而不师其迹”,精妙阐释了如何从中国传统儒家哲学审美意趣与山水智慧中汲取灵感,构建根植于本土营造技艺、与自然和谐共生的传统书院建筑空间秩序。作品不仅关注精神空间的营造,更强调了建筑作为物质载体在物理层面对“过热星球”的降温作用——即通过重构士人美学与传统生态智慧,为现代人提供一片栖息身心的诗意绿洲,这正是对“为过热的星球而设计”的深刻呼应。

本次双年展展示了来自中国、印度、日本、西班牙、法国和密斯凡德罗基金会、欧盟委员会等30个国家和国际组织的作品,展览委员会经过严格筛选,层层比对,最终展出超过200个优秀项目。展览也得到了国际建筑师协会、巴西国家文化部、圣保罗市政府及其他各界的支持来自展览主办单位之一的圣保罗分会主席RaquelShenkman 表示:“圣保罗国际建筑双年展是美洲最重要的建筑展览之一,始于1951年,巴西建筑师协会在圣保罗国际艺术双年展中组织建筑展览,至今已见证70多年的历史。

圣保罗国际建筑双年展国际影响重大,被称为拉丁美洲建筑文化的窗口,也是全球建筑师、城市规划师和设计师的重要交流平台。 学院负责人表示,田长青老师团队作品的入选,极大地鼓舞了全院师生。学院将以此为契机,继续深化工科”建设背景下的建筑教育创新,强化国际交流合作,推动产学研深度融合,致力于培养更多具备国际视野、人文情怀与可持续设计能力的新时代建筑人才,为中国乃至全球的建筑可持续发展贡献“长理智慧”与“长理力量”。

(文/张望、易宇 图/易宇 一审/易宇 二审/吴荻子 三审/熊鹰 )