2016年5月25日晚7:30,湖南省建筑设计院设计咨询中心设计总监罗明彰高级建筑师做客理工建筑聊天室,以“地域性绿色建筑创作实践”为主题,以1995级大师兄(首届建筑学校友)的身份,向学弟学妹们讲述他从业17年的经历及感悟。



讲座过程中,罗师兄重点列举了三个实例
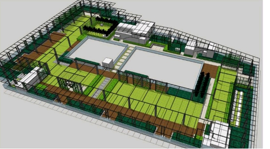
湖南建筑设计院江雅园办公大楼

利用被动优先的原则,来处理场地以及环境关系
通过露台将风引入中庭

西面采取内阳台的方式,外面布置U型玻璃,在遮阳的同时,能够低调的与周边环境相协调,整个项目完成度很高。
7
绿色生态的屋顶及构架,最大程度地增加了场地的绿地面积,同时极大地改善绿化区域的微气候环境。

项目总结:自由趣味的空间、不期的偶遇也许是用理性工具来探索与丈量的合理结果。
南华大学图书馆项目
该项目立足于场地,利用“灯塔”的理念,图书馆像塔一样;它既是一个中心,同时又能与周围的景观融为一体。

四周布置绿色边庭步行系统,阶梯层层而上,阶梯旁边还分布有阶梯平台


将竖向交通尽力解决在中心部分,四周向外挑出大概8米左右,拥有全方位的视野效果。
利用拔风井、地道风的方式将风引入建筑,降低能耗。


该项目历经波折,最终方案落地建造。
项目总结:建筑的偶然性是环境、地域、文化、技术手段甚至是政治的必然结果。
醴陵陶瓷会展中心项目
原方案采用膜结构,成本过高,并且遮阳效果不明显

现方案对其进行了优化(主要在成本控制方面),将过于形式主义的膜结构换成了展示墙。

项目总结:建筑设计容易的是听从别人的建议,难的是坚持否定自己,这个过程或许才是创作的真正意义。
罗师兄最后分享了他的工作经验总结:
学习方法:理性思考——团队协作——专研精神
设计观点:城市之礼——传统之敬——艺术之慧
工作观念:职业——专业——事业
理想价值:自律——自信——自由
严钧教授主持了讲座,受学院委托,向罗明彰建筑师颁发了太阳成集团tyc122cc入口客座教授证书。
(版权声明:本文正文中图片、照片为罗明彰授权使用,版权为其所有;
其他为理工建筑摄影。)
理工建筑公众号已加入原创保护,您可以在文章底部留言
欢迎师生们、朋友和同行们关注我们的后续活动
关注我们的微信公众号,精彩不断继续
欢迎来聊天,欢迎来喝茶

理工建筑(CUST_Architecture)
风雨无阻,连接长理建筑学子和关注建筑的人
长按识别图中二维码,关注理工建筑聊天室,我们将不断推送相关活动信息
后勤支持:林祎平、林志勇、邹偲康、马小娜、吴弘舟等
摄影:李磊、黄铎;海报:闵理卉
编辑:杨保程、郭新宇
附件: